Las obras de remodelación en las oficinas del Área de Menores ya tienen empresa para su ejecución

CONTRATATACIÓN

Entre las obras, también se procederá a la divisón e independencia de la sala de reuniones con respecto a la oficina conjunta. Actualmente se encuentran comunicadas por unas escaleras que salvan ambos espacios, siendo necesario pasar por las oficinas para acceder a la sala de reuniones. La independencia de ambas salas, generará la creación de un nuevo acceso en el último nivel

FOTO PROYECTO DE OBRA
FOTO PROYECTO DE OBRA

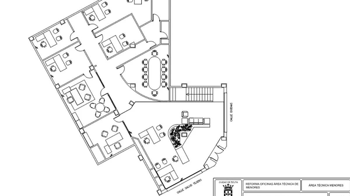
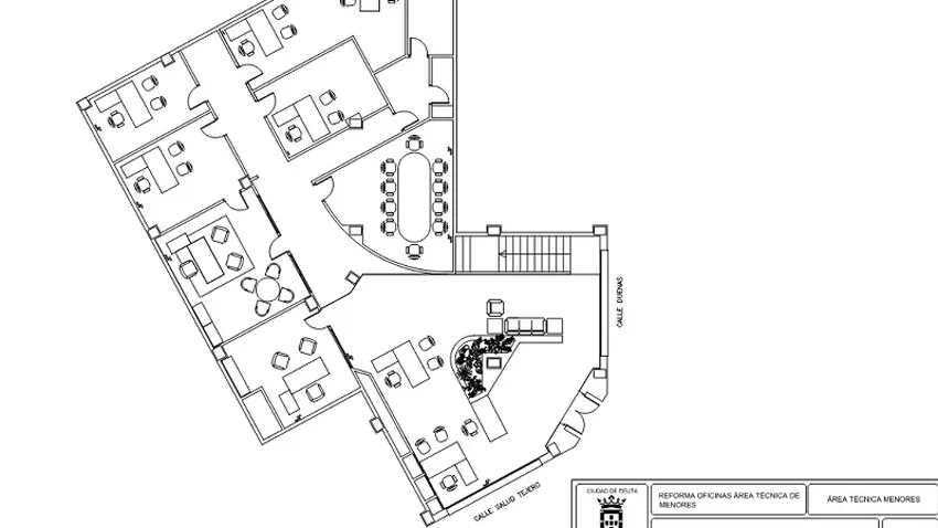
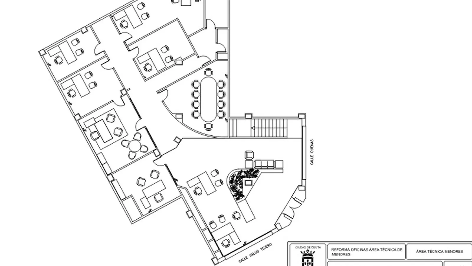
La Consejería de Presidencia y Gobernación de la Ciudad Autónoma de Ceuta, a través de la Plataforma de Contratación del Sector Público, ha comunicado el anuncio de adjudicación por el que se da luz verde a la ejecución del proyecto de reforma de las oficinas del Área de Menores en Calle Dueñas. Un contrato con un presupuesto base de licitación de 52.507,1€ y un plazo de ejecución de 3 meses, que finalmente ha sido adjudicado a SEPTA ENERGY SL, por un importe de adjudicación de 42.000€.

En relación a las obras, el proyecto contiene varias actuaciones. Por un lado, en la planta baja, se procederá a la demolición de archivo en planta baja, para posterior comunicación con oficinas laterales y de este modo aumentar el espacio destinado al personal. Se realizará en un mismo sentido, el traslado el paramento vertical separador de las oficinas colindantes a cara de pilar actual, instalando sobre dicho paramento, dos accesos independientes para los nuevos despachos generados en el interior que a su vez deberán ser divididos mediante tabiquería interior. El nuevo espacio ganado al archivo deberá ser solado conforme a su nuevo destinado.

En la planta primera, se ejecutará la demolición de baños de planta primera, retirada de sus elementos y reforma del interior para recepción e nuevos espacios de trabajo. En ese mismo espacio se generara un pequeño aseo, donde actualmente se encuentra el cuarto de limpieza para los usuarios de planta primera, al que se accederá con puerta corredera para ajustar el espacio destinado al mismo. Estos nuevos despachos contaran con equipo Split de climatización y rejillas de ventilación conectadas a la red actual del centro a través del pasillo lateral.

Entre las obras, también se procederá a la divisón e independencia de la sala de reuniones con respecto a la oficina conjunta. Actualmente se encuentran comunicadas por unas escaleras que salvan ambos espacios, siendo necesario pasar por las oficinas para acceder a la sala de reuniones. La independencia de ambas salas, generará la creación de un nuevo acceso en el último nivel, en el pasillo distribuidor, mediante la instalación de una puerta de acceso que comunique directamente al personal con la sala de reuniones.

Así como la creación de un nuevo espacio de reunión alternativo, instalado en zona de espera de planta primera a modo de pecera, con elementos acristalados. Este nuevo espacio, quedará definidos según los límites del proyecto, siendo su finalidad la de proporcionar un nuevo espacio de reunión, visible y accesible. Se deberá realizar el anclaje de los elementos teniendo en cuenta los elementos portantes más cercanos. Este nuevo espacio deberá contar con puerta de acceso abatible, extracción e instalación de fuerza, así como iluminación independiente. Además, se procederá a ejecutar actuaciones de revestimiento y acabado sobre todo el conjunto motivo de la actuación.

En último lugar, cabe reseñar que corresponderá al adjudicatario la obtención de la información, permisos y licencias oficiales o particulares que se requieran para la ejecución de los trabajos encomendados. Asimismo, el pago de los cánones, compensaciones y demás indemnizaciones a que haya lugar para la realización del contrato y el de la publicación de la información que origine, tanto pública como privada. Además, el adjudicatario estará obligado a disponer los medios necesarios que determine el Director Técnico para que éste pueda efectuar las pertinentes verificaciones de los sistemas y servicios objeto del presente contrato.

Sigue el canal de El Pueblo de Ceuta en WhatsApp. Pincha aquí, dale a SEGUIR y encontrarás toda la actualidad informativa de la jornada ceutí

También te puede interesar

Lo último

stats